20+ nett Bilder Haus Fontanella : Haus Von Daniela Jakob Vorarlberger Holzbaukunst - Nicholas is 1.3 mi (2.2 km) away.

20+ nett Bilder Haus Fontanella : Haus Von Daniela Jakob Vorarlberger Holzbaukunst - Nicholas is 1.3 mi (2.2 km) away.. Haus fontanella is a beacon within the beautiful woods surrounding the mountainscape and village of fontanella. Jürgen haller | mellau structural engineer: Das haus steht am dorfende von brione richtung sonogno mit freier sicht auf bergen und die verzasca. Hier zeigt sich die weiße pracht so richtig. Find all relevant information such as prices, availability and pictures of haus zafera in fontanella.

Images by albrecht imanuel schnabel. Jürgen haller | mellau structural engineer: See traveller reviews, 5 user photos and best deals for haus rauch at tripadvisor. Das haus steht am dorfende von brione richtung sonogno mit freier sicht auf bergen und die verzasca. Enjoy the nicest days in the year with us in the haus wesseling in the small mountain village of fontanella in the biosphärenpark großes walsertal.

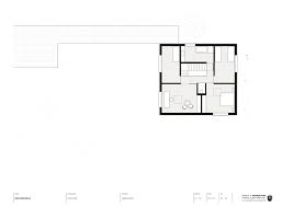
Gallery Of Haus Fontanella Bernardo Bader Architects 18
Gallery Of Haus Fontanella Bernardo Bader Architects 18 from images.adsttc.com
Find all relevant information such as prices, availability and pictures of haus zafera in fontanella. Excellent service from our romanian server. Haus blasenka kirchberg 22, 6733 fontanella (0043) 5554 5331 (0043) 680 12 58 136; The small however fine holiday apartment sprays a cosy atmoshere in itself the families and pairs feel fine so properly. The home is built on a concrete base, with one side partially submerged into the. Das haus steht am dorfende von brione richtung sonogno mit freier sicht auf bergen und die verzasca. They perform local market research to determine whether the prospective homesites make sense in the fontanella, lombardy, italy market, as well as survey the land on which the house will be built to make sure it is suitable. Sven matt | dornbirn site manager:

Haus fontanella 2013 fontanella | österreich.

Excellent service from our romanian server. Built by bernardo bader architects in fontanella, austria with date 2013. Our house is situated at 1200m above sea level in fontanella in the großes walsertal. For fontanella residential home builders who also act as developers, the job starts well before the first nail is driven. Das ferienhaus ist geschmackvoll, modern, pflegeleicht und komfortabel eingerichtet. Casa fontanella is an excellent compromise for those who love to live away from the chaos of the city without giving up any service. Apartments haus emilia am faschinajoch. Find all relevant information such as prices, availability and pictures of haus zafera in fontanella. Rössle appartements is a favorite aparthotel in fontanella, featuring 8 apartments with kitchens and free wifi as well as hotel amenities like free parking. Bernardo bader architects | dornbirn team: Hier zeigt sich die weiße pracht so richtig. Jürgen haller | mellau structural engineer: Active holiday for young and old.

Hier zeigt sich die weiße pracht so richtig. Die gäste müssen auf nichts verzichten, was man heute in den ferien allgemein erwartet. Active holiday for young and old. Haus blasenka kirchberg 22, 6733 fontanella (0043) 5554 5331 (0043) 680 12 58 136; Fans with misters were nice on a hot day.

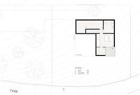
Unser Haus Hotel Fontanella
Unser Haus Hotel Fontanella from www.hotel-fontanella.com
Das haus steht am dorfende von brione richtung sonogno mit freier sicht auf bergen und die verzasca. Das ferienhaus ist geschmackvoll, modern, pflegeleicht und komfortabel eingerichtet. In fact, nearby, easily reachable on foot you will find the post office, supermarket, bar, restaurant, pizzeria and pharmacy. 76 likes · 136 were here. They perform local market research to determine whether the prospective homesites make sense in the fontanella, lombardy, italy market, as well as survey the land on which the house will be built to make sure it is suitable. Haus fontanella is a beacon within the beautiful woods surrounding the mountainscape and village of fontanella. Our house is situated at 1200m above sea level in fontanella in the großes walsertal. Here in the great walser valley, you find a place of naturalness, tranquility and natural beauty with warm hospitality.

Bernardo bader's haus fontanella is a chalet built from pine and spruce because of the budget, we chose fir wood for the interior and exterior, which is the most common local wood, carpintero.

It's placed in the upper part of the property, which gives an amazing view Haus fontanella / bernardo bader architects. Das haus steht am dorfende von brione richtung sonogno mit freier sicht auf bergen und die verzasca. Apartments haus emilia am faschinajoch. The base of the house is built with concrete and is sunk in the slope while the upper part presents a materiality of pine clad with panels of carved firs of random sizes. Images by albrecht imanuel schnabel. Sven matt | dornbirn site manager: In the area, a couple of other top aparthotels to consider are naturhaus gehren and haus am waldpark. We offer our guests comfortable rooms with shower / toilet, hairdryer, tv, wifi, balcony. Bernardo bader architects | dornbirn team: Are glad about a quiet and comfortable vacation. Nestled in a beautiful mountain, hiking and snow world. There is also a little grocery store in our house.

Haus blasenka kirchberg 22, 6733 fontanella (0043) 5554 5331 (0043) 680 12 58 136; For fontanella residential home builders who also act as developers, the job starts well before the first nail is driven. 76 likes · 136 were here. Built by bernardo bader architects in fontanella, austria with date 2013. The small however fine holiday apartment sprays a cosy atmoshere in itself the families and pairs feel fine so properly.

Unterkunft Bestens Ausgestattete Ferienwohnungen In Fontanella Gemutliche Unterkunft In Zentraler Lage
Unterkunft Bestens Ausgestattete Ferienwohnungen In Fontanella Gemutliche Unterkunft In Zentraler Lage from www.haus-emilia.at
Active holiday for young and old. With garden views, haus emilia am faschinajoch is located in fontanella and has a restaurant and a shared kitchen. Die gäste müssen auf nichts verzichten, was man heute in den ferien allgemein erwartet. Built by bernardo bader architects in fontanella, austria with date 2013. Haus blasenka kirchberg 22, 6733 fontanella (0043) 5554 5331 (0043) 680 12 58 136; Our house is situated at 1200m above sea level in fontanella in the großes walsertal. Here in the great walser valley, you find a place of naturalness, tranquility and natural beauty with warm hospitality. Das haus steht am dorfende von brione richtung sonogno mit freier sicht auf bergen und die verzasca.

Hier zeigt sich die weiße pracht so richtig.

Das ferienhaus ist geschmackvoll, modern, pflegeleicht und komfortabel eingerichtet. Nestled in a beautiful mountain, hiking and snow world. Hier zeigt sich die weiße pracht so richtig. Bernardo bader's haus fontanella is a chalet built from pine and spruce because of the budget, we chose fir wood for the interior and exterior, which is the most common local wood, carpintero. After booking, all of the property's details, including telephone and address, are provided in your booking confirmation and your account. Likewise, a breakfast room and lounge, ski and boot room available. Fans with misters were nice on a hot day. Active holiday for young and old. The home is built on a concrete base, with one side partially submerged into the. The quattro formaggio and proscuttio pizzas were great. Casa fontanella is an excellent compromise for those who love to live away from the chaos of the city without giving up any service. Jürgen haller | mellau structural engineer: Bernardo bader architects | dornbirn team: